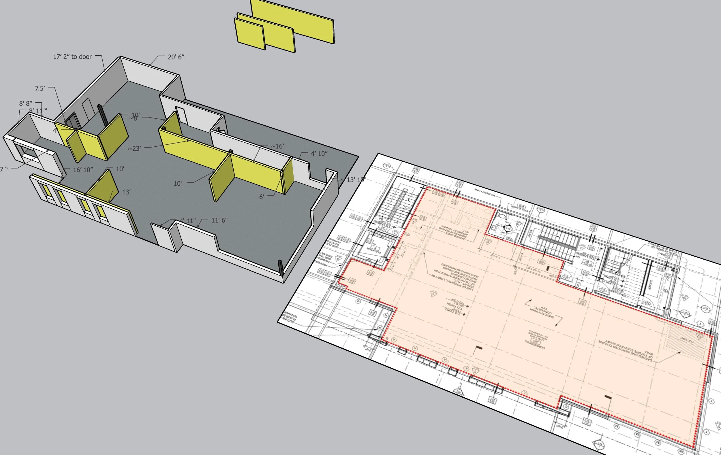
3D Modeling

Modeling with Sketchup and Solid Works is the best way to prepare for projects, inform budgeting, and align goals across channels and teams. I hash out ideas, both big and small, in the digital realm to save resources when it’s time to go live.